Proyecto Penthouse

Casa moderna y estereotómica en terreno pequeño

En este proyecto el cliente nos solicito diseñar una casa moderna y estereotómica en un terreno pequeño de 5 m x 14 m

diseño arquitectónico imponente, atractivo y funcional

Considerando el buen gusto y las exigencias del cliente logramos un diseño imponente, atractivo y funcional. Combinando la arquitectura estereotómica introspectiva que aprovecha y potencia hasta el ultimo cm del terreno

Diseño interior amplio y ambientado con iluminación natural

Un diseño interior amplio con iluminación y climatización natural por medio de vientos cruzados. Se aprovecho al máximo cada espacio con una distribución inteligente de los ambientes que el cliente solicito

Diseño de espacios interiores climatizados naturalmente

Un espacio social amplio, bien iluminado y refrescante uniendo sala cocina y comedor para poder disfrutar de reuniones familiares y con amigos

Jardín interior

En el corazón del terreno colocamos un jardín que articula los espacios sociales de la casa para generar la iluminación y ventilación natural que se quería logar

pared vitrina con vista panoramica

Al subir por las escaleras al segundo nivel nos recibe una hermosa y amplia ventana que nos genera esa iluminación natural y una vista panorámica hermosa que nos conecta con las dos habitaciones y la sala de estar.

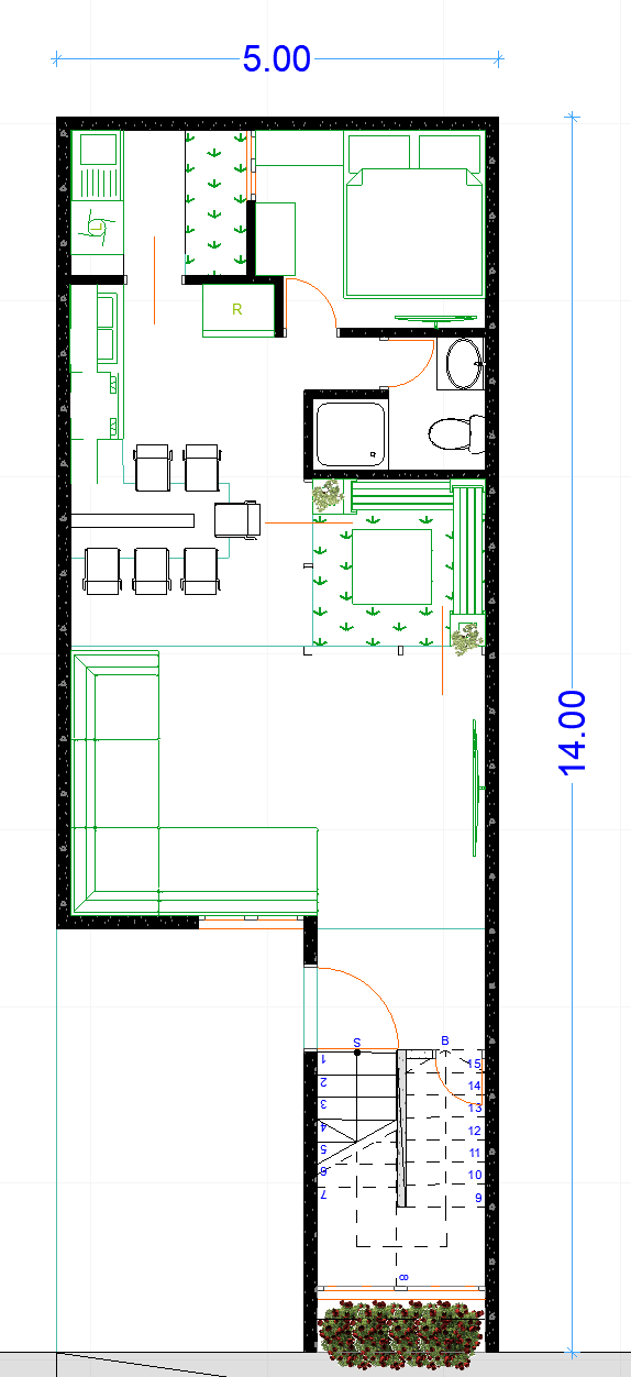
planta arquitectónica nivel 1

En el primer nivel aparte del área social sala, cocina, comedor. También se encuentra la lavandería y la habitación de visitas con un baño completo y estacionamiento para un vehículo

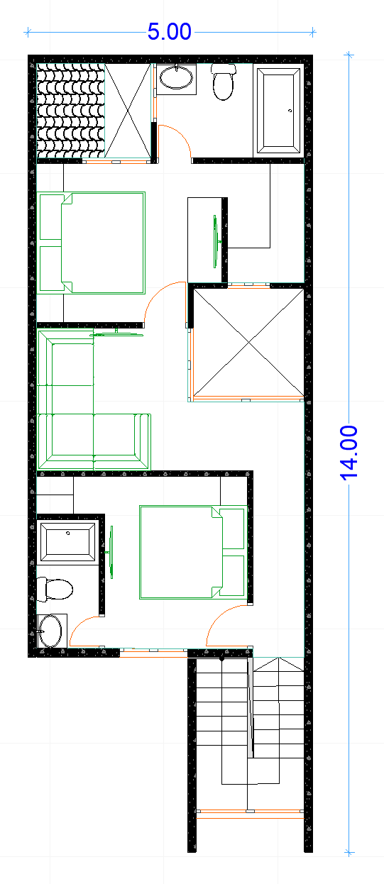
planta arquitectónica nivel 2

En el segundo nivel contamos con la habitación principal con su respectivo baño y walking closet. La habitación secundaria con su baño y espacio para closet. También contamos con la sala de estar respectivamente iluminada y ventilada naturalmente por medio de un vacío con ventanas corredizas. No hay terreno pequeño para un gran diseño. Cotiza con nosotros tu gran diseño…

Anterior
Anterior

Proyecto American House

Siguiente
Siguiente

Proyecto K29