Proyecto American House

Fachada casa americana

American house es un diseño inspirado en la arquitectura norte americana ubicada en el centro de un terreno de 30 mts x 50 mts rodeada por un muro perimetral acabado piedra natural, puerta de acceso y con portones de ingreso y salida

diseño arquitectónico casa americana

Con revestimientos decorativos y acabados finos. Techo de shingle de 10 aguas en casa principal y en cochera de 4 aguas. Ventanas francesas reflectivas, puerta doble metálica y vidrio reflectivo batiente ambos lados

diseño interior casa americana

Al ingresar nos recibe un amplio pasillo con un encielado decorado con volúmenes perimetrales a la izquierda la habitación de visita con baño completo, al derecha paso de ingreso de cochera, al frente el área social

iluminación natural casa americana

El pasillo de servicio conecta a la casa con la cochera, lavandería, cocina jardín oeste y baño social esto permite una mejor y mas cómoda circulación.

Casa americana con doble altura

Con una doble altura en su área social generando una gran amplitud, iluminación y frescura. A la derecha una hermosa cocina moderna con lavatrastos con vista al jardín en medio una gran isla con su estufa sobre cuarzo y envuelta en carpintería, seguida por un comedor de 8 a 10 personas

escaleras acabado madera con pasamano de vidrio templado

Una gran sala conectada al área de bar para una mejor convivencia familiar y social. Tv ubicada donde no molesta el resplandor del sol escaleras con una acabado a madera con pasamanos de vidrio templado ambos lados y una puerta de ingreso por el jardín este.

Área social con doble altura

En el segundo nivel nos recibe una amplia sala de estar que nos conecta con las cuatro habitaciones del nivel dos. Rodeada de iluminación natural y vistas panorámicas

Iluminación y ventilación natural

Un sistema estructural de columnas y vigas escondidas en muros, generando paredes lisas, complementando con voladizos logrando espacios mas amplios y estéticos

Doble altura diseño estructural

Al tener el diseño arquitectónico definido se procede a realizar el diseño estructural empezando con el bajado de cargas: carga muerta (peso de la estructura) cargas viva (peso adicional: habitantes, mobiliario) con estos datos se hace un dimensionamiento y calculo estructural de todo el conjunto estructural: desde capacidad de carga del suelo, cimentaciones, columnas, vigas, paredes, entrepiso, techo al tener el dimensionamiento del conjunto estructural se pone a prueba su resistencia sísmica mediante prueba de pushover (o análisis pushover) es un método de ingeniería estructural no lineal y estático que simula el comportamiento de un edificio ante cargas laterales (como un sismo), empujándolo incrementalmente hasta su falla para determinar su capacidad sísmica, identificar puntos débiles (rótulas plásticas) y obtener una curva de capacidad (fuerza vs. desplazamiento) que revela su resistencia y ductilidad. 

Jardín americano

Un diseño rodeado de naturaleza logrando frescura, iluminación natural y hermosas vistas. Un área de mini bar y área de asados para una agradable convivencia familiar y social

Gestión de permisos constructivos el salvador

Al tener el anteproyecto (diseño arquitectónico, modelado 3d, volumen de obra y plan de oferta) se procede al proyecto ejecutivo el cual consiste en el diseño de las planos constructivos para la gestión y aprobación de permisos de construcción con la entidad correspondiente empezando por el plano de linea de construcción, consiste en determinar la ubicación de la linea del terreno colindante con la calle. Esta linea determina donde inicia la construcción

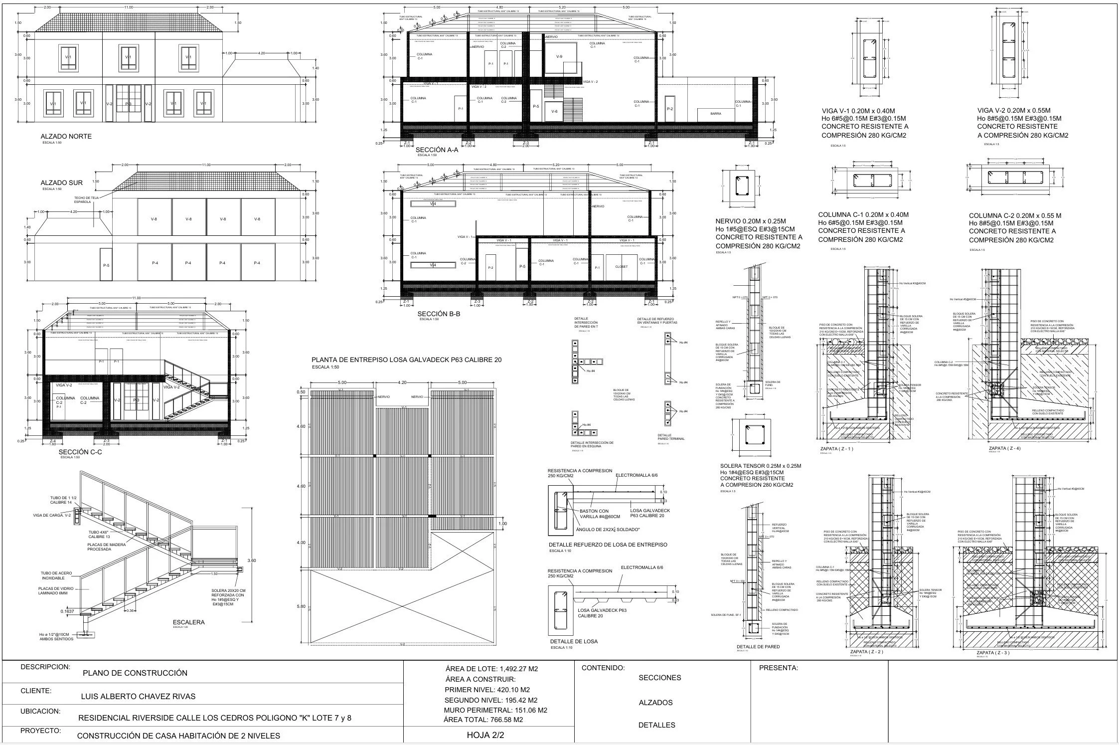
Elaboracion de planos constructivos y gestión de permisos en el salvador

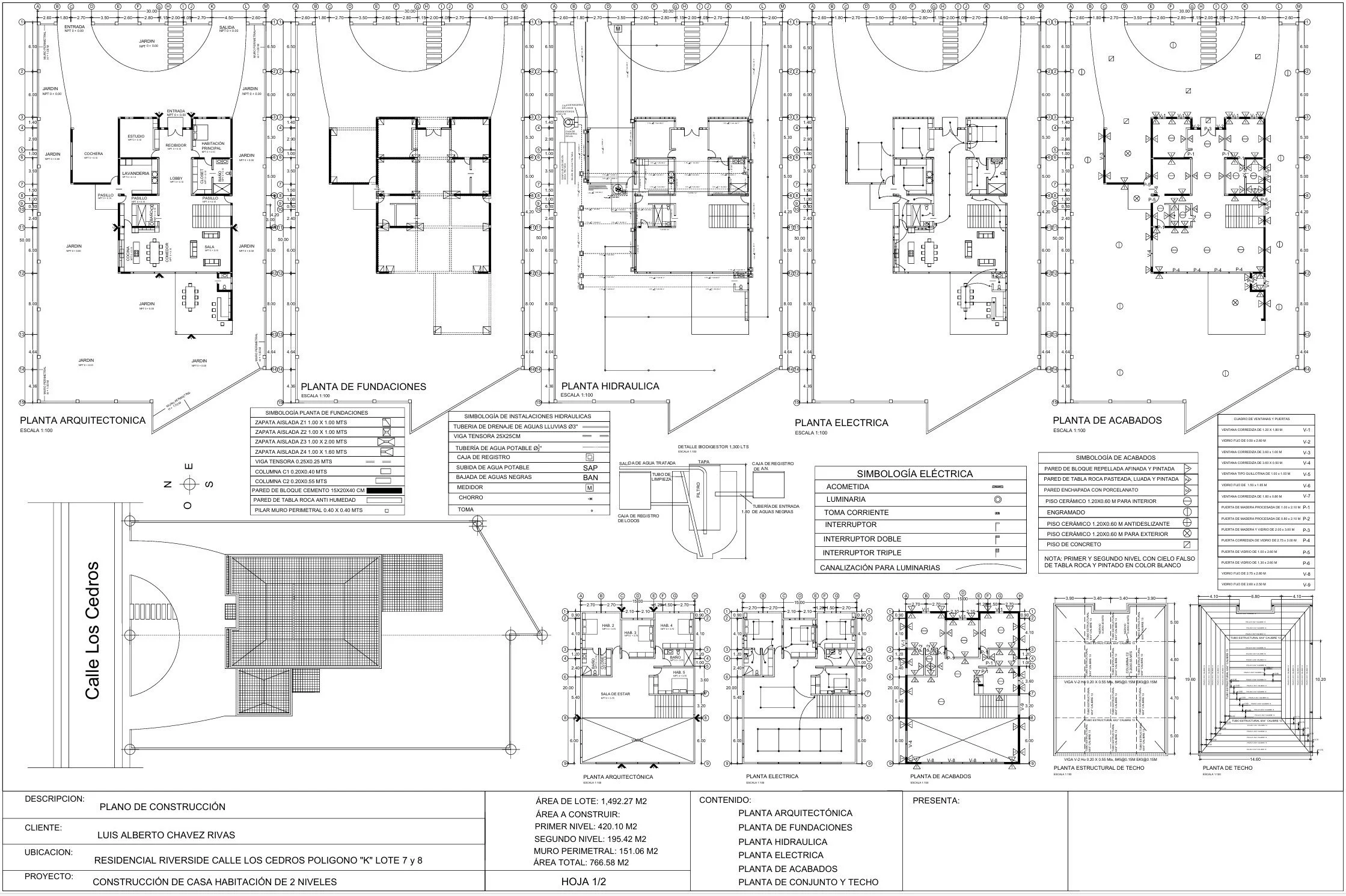
Al aprobarse el plano de linea de construcción se presenta el conjunto de planos constructivos los cuales contemplan: planta arquitectónica, planta de fundaciones, planta hidráulica, planta eléctrica, planta de acabados, planta de conjunto y techo

aprobación de permisos constructivos en el salvador

Secciones y detalles estructurales, fachada, alzados, planta de losa de entrepiso, detalle de escalera. Al aprobarse los permisos constructivos se puede iniciar con la construcción evitando multas, paros de obra y errores constrictivos ya que los planos sirven para verificar y supervisar que la obra se construya tal cual esta en los planos. Cotiza con un profesional el costo de tu anteproyecto y proyecto ejecutivo que deseas construir…

Anterior
Anterior

Proyecto Casa de Campo

Siguiente
Siguiente

Proyecto Penthouse