Proyecto K29

diseño estereotómico con iluminación atractiva

Proyecto K29 es un diseño estereotómico introspectivo de dos niveles en un terreno de 6 mts de ancho y 18 mts de largo empezando con una cochera semiabierta con parqueo para dos vehículos y dos portones corredizos acabado madera

Escalera flotante acabado madera

Con una puerta batiente doble acabado madera que al abrirse nos recibe una hermosa escalera flotante acabado madera y el pasillo que nos lleva al área social del primer nivel con la puerta de vidrio del jardín de fondo

diseño de cocina moderna

En el primer nivel tenemos habitación y baño de visita. Un área social de sala, comedor y cocina, una puerta de vidrio corrediza que nos lleva al jardín y nos brinda frescura, iluminación y ventilación natural.

ventilación por vientos cruzados

Al subir al segundo nivel por las escaleras flotantes nos recibe una doble altura sobre la sala y una celosía que funciona como un respirador natural para casa sacando haciendo que el aire caliente suba y salga por la celosía este efecto hace una circulación del aire por medio de vientos cruzados

ventilación e iluminación natural

Esta celosía mas la ventana corrediza conjunta hacen una descarga de aire caliente eficiente haciendo que el aire fresco baje y circule por la casa produciendo un enfriamiento natural por medio de la circulación del aire

doble altura con ventilación natural

haciendo la función de un pulmón natural ingresando aire fresco y sacando aire caliente haciendo similar trabajo a lo que hace un aire acondicionado ahorrándote los costos que genera una aire acondicionado funcionando constantemente en un área social

habitación principal modera con balcón

Las puertas de la casa son acabado madera nogal. En el segundo nivel se cuenta con dos habitaciones con baño propio completo por habitación. En la habitación principal cuenta con con balcón y vista a la calle

Iluminacion y ventilación natural en habitación principal

El balcón cuenta con una puerta de vidrio corrediza y batiente que puede abrir en su totalidad para así poder generarle una mejor circulación de aire y pueda refrescar mas la habitación

casa estereotómica introspectiva

Se coloco una ventana en el baño de la habitación principal para brindar una mejor iluminación y ventilación. Un diseño estereotómico introspectivo con una abstracción con una vista lateral sutil hacia la calle para mayor privacidad

diseño de celosia función ventilación por vientos cruzados

En la parte trasera de la casa se cuenta con área de lavandería completo se ingresa por la cocina y también tiene acceso al jardín.

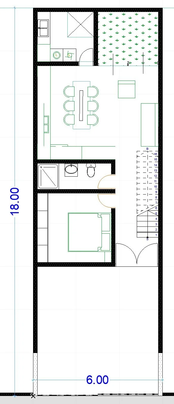
planta arquitectónica nivel 1

Planta arquitectónica nivel 1

Chochera para dos vehículos, pasillo y escalera, habitación y baño de visita, sala, comedor, cocina, lavandería y jardín

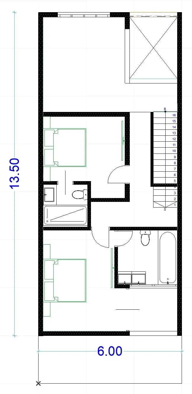
planta arquitectónica nivel 2

Planta arquitectónica nivel 2

Habitación principal con puerta corrediza batiente que abre en su totalidad hacia el balcón, baño propio completo con inodoro, dos lavamanos y tina, habitación secundaria con baño propio completo, sala de estar y doble altura que funcional como respirador natural.

Cotiza tu diseño arquitectónico y modelado 3d

Anterior
Anterior

Proyecto Penthouse

Siguiente
Siguiente

Proyecto Villa Salamanca